Thiết kế mẫu biệt thự phố 3 tầng mái thái 8x30m tại Bình Dương

Thiết kế biệt thự 3 tầng và hình ảnh thiết kế được bật mí Tổng Hợp Mẫu Thiết kế biệt thự - Mẫu biệt thự đẹp say mê hút hồn Xu hướng thiết kế biệt thự tân cổ điển đẹp mới nhất 2025

Thay vì dùng những họa tiết để nói lên nét đặc trưng của một công trình tân cổ điển. BT609 là mẫu biệt thự phố 3 tầng mái thái tân cổ điển được sử dụng các đường nét sắc xảo để tạo điểm nhấn. Việc giản lược các hoa văn họa tiết không làm cho kiến trúc này mất đi nét đặc thù. Mà ngược lại còn giúp đem lại cho biệt thự nét đẹp nhã nhặn như sau.

Điều đơn giản tạo thẩm mỹ cho mẫu biệt thự phố 3 tầng mái thái

Phong cách thiết kế đơn giản này chính là kiểu được nhiều người muốn kiến trúc của mình hướng đến. Bản vẽ thiết kế biệt thự phố 3 tầng mái thái được dựng bởi 2 khối, vừa tạo cho không gian bên ngoài nét đẹp đồ sộ. Vừa cơi nới tạo sự rộng rãi cho không gian sinh hoạt bên thêm phần dễ chịu khi đưa vào sử dụng.

Từng mảng khối betong đẹp mắt nhờ lối thiết kế các đường nét tạo điểm gờ, cũng như hoa văn đặt ở vị trí tầng cao nhất. Tạo nên điểm ấn tượng cho kiến trúc và người xem. Sang trọng và tinh tế thể hiện qua cách sử dụng các vật tư ứng dụng cho công trình. Nổi bật với hệ mái thái, đây cũng đang là xu hướng được nhiều người sử dụng.

Mái ngói thái có độ dốc, nhờ đó mà kiến trúc mẫu biệt thự 3 tầng đẹp này càng trở nên cao ráo và bắt mắt hơn. Đồng thời mang lại tính tiện nghi cho người sử dụng. Thông qua việc, giúp thoáng nước cực tốt và hiệu quả trong việc tránh nóng. Bởi độ dốc mái cao nên không gian bên trong trở nên thông thoáng và luôn mát mẻ hơn khi sử dụng các hệ mái khác.

Cách tạo sự nổi bật cho mẫu biệt thự phố 3 tầng mái thái

Chủ đạo trắng, các bức tường màu trắng kết hợp mái ghi sẫm màu. Ngoài ra, để mặt tiền chính kiến trúc thêm nổi bật. Kiến trúc sư sử dụng chất liệu gỗ để tạo nên các khu cửa ra vào chất lượng. Đồng bộ về chất liệu gỗ ở tầng trệt tại vị trí sảnh chính và sảnh ban công tầng 2. Điều này khiến cho mặt tiền càng thêm nổi bật nhờ nét sang trọng của 2 bộ cửa mang lại.

>> Xem thêm: thiết kế biệt thự 3 tầng 8x15m

Cửa chính với thiết kế chạm trổ đậm chất tân cổ điển. Còn khu cửa ở ban công mặt tiền mang thiết kế khung vòm. Cũng là một trong những đặc trưng của phong cách tân cổ điển góp phần tạo nên một mặt tiền vô cùng tinh tế. Ở các khu vực khác, cửa sổ được làm hoàn toàn từ kính, với khung phun sơn màu gỗ. Tạo nên sự đồng bộ và hài hòa cho cả kiến trúc.

Để kiến trúc thêm bề thế và thể hiện được nét đẹp kiên cố. Chi tiết trụ thiết kế liền mạch từ sân nền tầng 1, liên kết đến khu vực mái thái ở tầng 2. Điều này giúp biệt thự càng thêm ấn tượng. Trụ thân tròn với màu sơn trắng ngà với các đường vân xám sẫm tạo nên sự khác biệt với nền chủ đạo. Làm nên điểm nhấn ấn tượng cho kiến trúc.

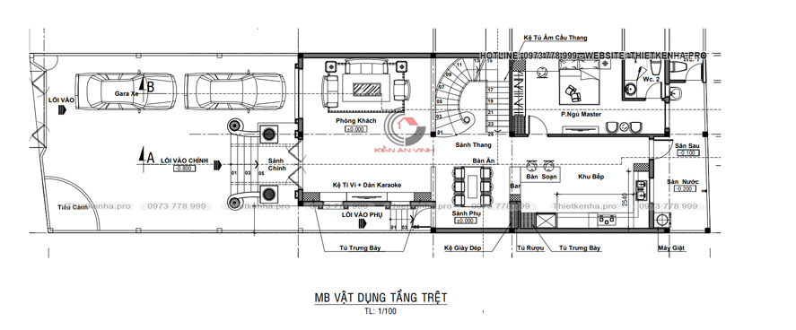
Bản vẽ bên trong mẫu biệt thự phố 3 tầng mái thái

Mẫu biệt thự phố 3 tầng mái thái không mang lại cảm giác lỗi thời. Nhờ các sử dụng vật liệu cũng như cách phối các chi tiết vô cùng hài hòa. Không làm cho kiến trúc trở nên nhàm chán do lối thiết kế đơn giản. Nhưng cũng chính nhờ lối thiết kế không cầu kì. Nên chi phí đầu tư cũng có phần giảm thiểu.

Ngoài ra, phần công năng bên trong được thể hiện rõ qua hình ảnh bên dưới. Công năng các phòng được tính toán và phân chia theo tỉ lệ chuẩn. Bởi tỉ lệ không gian các phòng được chia theo độ tuổi và nhu cầu sử dụng. Vì thế giúp cho các thành viên khi sử dụng luôn có cảm giác thoải mái dễ chịu.

CÔNG TY THIẾT KẾ – XÂY DỰNG KIẾN AN VINH

VPĐD1: 52 TCH 36, P.Tân Chánh Hiệp, Q. 12,Tp.HCM

Holine: 0973.778.999 – 0902.249.297

(028) 2205.6868 -(028)6277.0999 – chăm sóc khách hàng

(028) 2207 6868 (Kế Toán)- 0981.507.588 (Vật Tư)

0902.249.297 – kienanvinh2012@gmail.com

Website : https://thietkenha.pro

GỬI YÊU CẦU TƯ VẤN

Sau khi nhận được yêu cầu tư vấn của quý khách, Kiến An Vinh sẽ liên hệ sớm nhất có thể để tư vấn cho quý vị







1 tỷ - 2 tỷ2 tỷ - 3 tỷ3 tỷ - 5 tỷKhông xác định