Thiết kế mẫu biệt thự 2 tầng tân cổ điển 4 phòng ngủ 10x21m

Mẫu thiết kế biệt thự 2 tầng bứt phá mọi thời đại Tổng Hợp Mẫu Thiết kế biệt thự - Mẫu biệt thự đẹp say mê hút hồn Xu hướng thiết kế biệt thự tân cổ điển đẹp mới nhất 2025

BT627 với sự thanh lịch, cân đối trong lối thiết kế và bố trí. Mẫu biệt thự 2 tầng tân cổ điển tại Cần Thơ này trở nên ấn tượng ngay từ cái nhìn đầu tiên. Kiến trúc sư chú trọng đến sự cân bằng giữa các chi tiết, tuy là công trình bán cổ điển. Mang nét đẹp của sự kết hợp hiện đại và cổ điển, nhưng lại mang đến sự đơn giản, nhẹ nhàng và sự hài hòa của tổng thể.

 

Điểm nổi bật của mẫu biệt thự 2 tầng tân cổ điển

Những đường nét hiện đại, tinh giản của kiến trúc biệt thự 2 tầng tân cổ điển được bố trí hợp lý. Họa tiết trang trí tinh xảo tuy sử dụng có hạn chế, không quá nhiều. Nhưng vẫn giúp cân bằng thẩm mỹ, đồng thời việc tiết giảm các chi tiết còn giúp chủ đầu tư tiết kiệm tối đa chi phí đầu tư.

Sử dụng màu sắc trang nhã, với gam màu chủ đạo trắng kết hợp chi tiết đá ốp màu vàng nâu. Phần đá hoa cương, gỗ tự nhiên, kim loại phun sơn tĩnh điện giúp biệt thự trở nên sang trọng hơn đem lại sự khác biệt. Cũng như tạo nét đặc trưng nhận biết riêng biệt và để lại ấn tượng đến người xem.

 

Những đường nét hoa văn nhẹ nhàng trên cột, cửa sổ hay phần ban công. Chính là chi tiết làm tăng giá trị thẩm mỹ của từng khu vực cũng như tổng thể kiến trúc biệt thự 2 tầng này. Để không gian thông thoáng và có sự thoải mái. Kiến trúc sư còn bố trí các chi tiết sau để giúp hài hòa mỹ quan cũng như giúp tiện lợi trong việc sử dụng như sau.

 

Các chi tiết tạo mỹ quan cho mẫu biệt thự 2 tầng tân cổ điển

Sử dụng cửa chính bằng gỗ, màu sắc nổi bật mặt tiền nhà. Kết hợp cửa phụ và cửa sổ các tầng làm bằng kính, điều này giúp tăng thêm vẻ đẹp hiện đại hơn. Làm cho mẫu biệt thự 2 tầng tân cổ điển không bị cứng nhắc mà trở nên gần gũi và mềm mại hơn. Đồng thời là yếu tố giúp ngăn tiếng ồn từ bên ngoài hiệu quả, tạo không gian riêng tư cho gia đình.

 

Hệ mái mansard là một trong những kiểu mái đặc trưng của những kiến trúc tân cổ điển Pháp. Với thiết kế mái cao ráo giúp điều hòa nhiệt độ bên trong. Tạo không gian mát mẻ vào mùa hè. Và hiệu quả trong việc chống ẩm mốc vào mùa mưa, do tính năng thoát nước tốt của mái. Kiểu mái này giúp biệt thự trông cao ráo, sang trọng hơn hẳn so với các loại mái thông thường.

Để đảm bảo sự an ninh bên trong. Kiến trúc ở được bao bọc bởi tấm tường rào bao bọc với kích thước cao. Giúp đảm bảo an ninh bên trong, đồng thời làm tăng sự bề thế cho tổng thể biệt thự 2 tầng tân cổ điển. Với phần sân lớn, giúp cho khu vực đậu đỗ xe trở nên thuận lợi hơn. Chủ nhà cũng có thể tiết kiệm kinh phí hơn khi so với việc bố trí thêm tầng hầm xe.

 

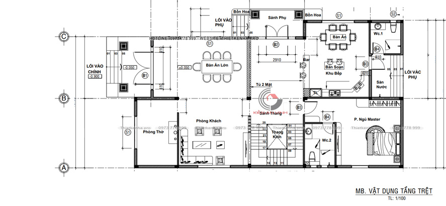
Cách bố trí công năng mẫu biệt thự 2 tầng tân cổ điển

Mẫu biệt thự 2 tầng tân cổ điển với 5 phòng ngủ, thích hợp cho gia đình từ 3 đến 6 người. Việc tích hợp nhiều không gian bên trong biệt thự không làm cho người sử dụng khó chịu vì chật và bí bách. Mà ngược lại với tay nghề chuyên môn lâu năm. Kiến trúc sư sẽ giúp bạn thiết kế bố trí không gian phòng ban phù hợp. Tạo tiện ích tối đa khi đưa vào sử dụng.

>> Xem thêm: mẫu biệt thự 2 tầng mái nhật đẹp

Lối thiết kế phối cảnh và công năng dạng này, không chỉ mang lại không gian sống bề thế, tiện nghi. Mà còn đáp ứng nhu cầu thẩm mỹ xu hướng ở mọi thời đại. Công năng được bố trí như sau:

Tầng trệt: Phòng khách, Bếp, khu vực bàn ăn, 1 phòng ngủ master, 2 wc.

Tầng lầu: Gồm 4 phòng ngủ, 1 phòng sinh hoạt chung và các khu vực khác.

CÔNG TY THIẾT KẾ – XÂY DỰNG KIẾN AN VINH

VPĐD1: 52 TCH 36, P.Tân Chánh Hiệp, Q. 12,Tp.HCM

Holine: 0973.778.999 – 0902.249.297

(028) 2205.6868 -(028)6277.0999 – chăm sóc khách hàng

(028) 2207 6868 (Kế Toán)- 0981.507.588 (Vật Tư)

0902.249.297 – kienanvinh2012@gmail.com

Website : https://thietkenha.pro

GỬI YÊU CẦU TƯ VẤN

Sau khi nhận được yêu cầu tư vấn của quý khách, Kiến An Vinh sẽ liên hệ sớm nhất có thể để tư vấn cho quý vị







1 tỷ - 2 tỷ2 tỷ - 3 tỷ3 tỷ - 5 tỷKhông xác định