Giữ được nét đẹp truyền thống và phối hợp thêm nét hiện đại, đáp ứng nhu cầu sử dụng của số đông người dân Việt ngày nay. Qua đó cho thấy những bản vẽ thiết kế biệt thự 2 tầng mái nhật dưới đây khá được trọng dụng trong xây dựng thời đại nay. Vừa đáp ứng nhu cầu sử dụng, vừa phù hợp với xu hướng cũng như kinh tế của đại đa số người dân.
Phối cảnh thiết kế biệt thự 2 tầng mái nhật 12mx12m bắt mắt
Mang tính ứng dụng cao, ngoài được thiết kế linh hoạt, có thể thay thế và đổi mới nếu có nhu cầu sửa chữa về sau. Nét đẹp của mẫu biệt thự 2 tầng mái nhật không chỉ thể hiện qua độ rộng 12x12m cho kiến trúc. Với tổng diện tích là 410.25M2 tính cả diện tích sân vườn. Mà biệt thự còn nổi bật thông qua cách bày trí sắp xếp các chi tiết tạo thẩm mỹ cho kiến trúc.

Các kiến trúc sư khá thận trọng trong việc sử dụng các yếu tố làm tăng mỹ quan cho biệt thự 2 tầng đẹp này. Không làm dụng họa tiết, nét đẹp đơn giản nhưng vô cùng thu hút bởi sự tinh tế và hài hòa. Kiến trúc được sử dụng những yếu tố hiện đại. Nhưng vẫn giữ được vài nét đẹp cổ điển thông qua một số chi tiết. Tìm hiểu rõ hơn qua hình ảnh bên dưới nhé.

Kiến trúc mẫu nhà biệt thự 2 tầng này của chủ nhà là anh Sơn ngụ tại Hóc Môn. Được xây dựng phối cảnh trên hình thức phối hợp nét đẹp của sự hiện đại pha vài yếu tố cổ điển sang trọng. Vừa giúp chủ đầu tư tiêt kiệm được thời gian, tiền của. Cũng như vẫn đảm bảo được chất lượng của công trình đạt hiệu quả cao trong tạo thẩm mỹ cũng như việc sử dụng.

Ưu thế của mẫu thiết kế biệt thự 2 tầng mái nhật
Bản vẽ thiết kế biệt thự 2 tầng mái nhật còn nổi bật với hệ mái nhật với các lớp ngói giật cấp cao dần đều. Tạo nên sự bắt mắt và độc đáo cho kiến trúc. Làm biệt thự dễ dàng tạo nên được nét đẹp đặc trưng riêng biệt cho chính kiến trúc của mình. Hệ mái xanh ghi đặt cùng nền chủ đạo trắng càng làm nổi bật lên công trình với nét đẹp sang trọng và thời thượng.
Hệ thống cửa được trang bị chất liệu có độ bền và tạo hiệu ứng thẩm mỹ cao. Sảnh chính và các sảnh phụ ở tầng trệt đều được thống nhất. Dùng gỗ để lắp đặt cho khu vực cửa tại đây. Còn đối với các ô cửa sổ và cửa ra vào ban công ở các chỗ còn lại đều được làm bằng kính trong. Được tráng một lớp gương, tạo nên độ bóng và làm tăng nét sang trọng hơn cho kiến trúc.


Kiểu hình vòm được bố trí cho những khung cửa trên tầng 2, betong ôm trọn phần cửa. Giúp cho kiến trúc có thể sở hữu thêm được nét đẹp cổ điển. Các ban công được bố trí ở mỗi mặt tiền, tương ứng với một không gian phòng của các thành viên. Tại đây có thể thư giản với không gian riêng tư. Kiến trúc mang thiết kế thời thượng với nét đẹp đơn giản nên được khá nhiều người tìm hiểu.
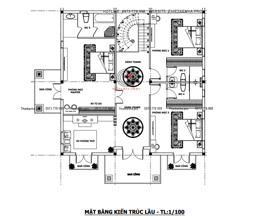
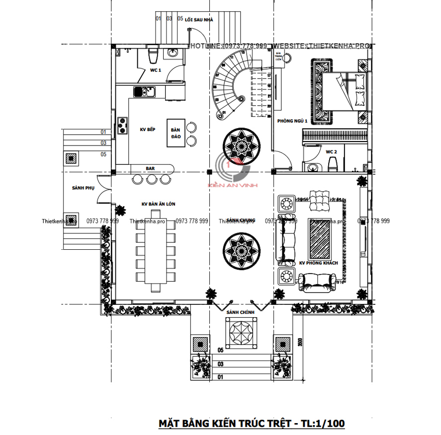
Bản vẽ công năng của mẫu biệt thự 2 tầng mái nhật
Mẫu biệt thự 2 tầng đẹp mang thiết kế kiến trúc kết hợp sân vườn rộng và thoáng. Tạo ra sân chơi cho nhà có trẻ nhỏ. Và cũng là không gian sinh hoạt chung của cả gia đình. Tạo sự gần gũi thân mật hơn. Tận dụng khu vườn để trông cây cảnh làm tăng sắc cho tổng thể biệt thự. Hy vọng đây là mẫu nhà biệt thự 2 tầng đẹp phù hợp với nhiều chủ đầu tư. Để được tư vấn miễn phí hãy liên hệ trục tiếp chúng tôi để được hỗ trợ nhé.

CÔNG TY TNHH TƯ VẤN THIẾT KẾ – XÂY DỰNG NHÀ KIẾN AN VINH
Trụ sở chính: 434 Nguyễn Thái Sơn, Phường 5, Quận Gò Vấp, TP.HCM
VPĐD : 52 Tân Chánh Hiệp 36, P. Tân Chánh Hiệp, Quận 12, TP.HCM
Chăm sóc khách hàng: 0981.960.839
Kế Toán: (028) 3715 6379
Email: kienanvinh2012@gmail.com
Website: https://thietkenha.pro
Hotline: 0973 778 999 – 0902 249 297












