Tối giản, hiện đại và tinh tế là những cụm từ được nhiều chủ đầu tư hướng đến khi thiết kế kiến trúc hiện nay. Với lối thiết kế này không chỉ giúp mang lại một không gian sống thời thượng. Mà còn hỗ trợ cho việc tiết kiệm chi phí đầu tư ở các khâu cho chủ nhà. Hình ảnh thiết kế biệt thự 2 tầng hiện đại mái thái 10x25m dưới đây là một công trình điển hình cho sự đơn giản mà vô cùng tinh tế.
Kiến trúc sư đảm nhận thiết kế với tay nghề cao đã giúp biệt thự trở nên đồ sộ và bắt mắt hơn. Công trình này với lợi thế không kén diện tích, chi phí đầu tư thấp. Và được điều chỉnh theo diện tích sẵn có của gia chủ nếu không phù hợp. Vì thế để thực hiện chủ nhà không cần lo lắng về mảnh đất của mình có phù hợp hay không. Với kinh tế trung bình chủ nhà có thể lựa chọn hình thức thiết kế này để đầu tư nhé.
Bản vẽ phối cảnh thiết kế biệt thự 2 tầng hiện đại mái thái
Kiến trúc thiết kế biệt thự 2 tầng hiện đại với thiết kế 2 lối vào, khiến biệt thự trở nên đồ sộ và tiện nghi hơn. Diện tích 10x25m kiến trúc sư đã phân chia phần kiến trúc và sân nhà vô cùng hợp lý. Sân không quá rộng gây tổn hại diện tích kiến trúc – nơi sinh hoạt của gia đình. Cũng không quá hẹp làm mất đi sự thoải mái khi thư giản tại đây.

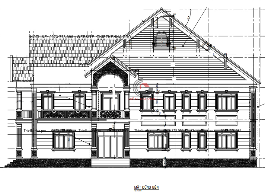
Lựa chọn những gam màu không quá sáng. Nhưng biệt thự 2 tầng vẫn toát lên được nét sang trọng nhờ gam màu nâu trầm của gỗ. Màu nâu sẫm được chọn làm màu nhấn ở các khu vực trung tâm. Màu nâu gỗ của cửa chính, cửa ban công ở tầng 2 và gạch áp mái. Tất cả được kiến trúc sư đặt ở những vị trí mặt tiền. Sự liên kết này khiến biệt thự trở nên độc đáo hơn.

Mái thái giật cấp, quan sát góc nhìn trực diện sẽ thấy được điểm ấn tượng của việc trau chuốc trong từng chi tiết mái của kiến trúc sư. Để không gian bên trong luôn thông thoáng, kiến trúc sư không những lựa chọn mái thái cao ráo để giúp ích việc lưu thông không khí. Mà cạnh đó còn được bố trí cửa thông gió. Giúp biệt thự đón được làn gió mát tự nhiên từ bên ngoài một cách tốt nhất.
Thế mạnh của mẫu biệt thự 2 tầng hiện đại 10x25m
Các khu vực cửa sổ được lựa chọn kính cường lực có độ bền cao. Vừa mang công dụng giúp cân bằng thẩm mỹ cho tổng quan bên ngoài biệt thự. Mặt khác giúp đón ánh sáng tự nhiên từ ngoài vào góp phần phô tương vẻ đẹp vốn có của nội thất bên trong. Cạnh đó còn góp phần giúp chủ nhà tiết kiệm tối đa chi phí điện năng tiêu thụ vào ban ngày.

Nói về kiến trúc, thành tường được trang bị các mảng trơn đơn giản. Nhưng để tránh tình trạng nhàm chán, kiến trúc sư sử dụng các đường chỉ kẻ ngang. Điều này được áp dụng cho toàn bộ kiến trúc tạo nên một khối kiến trúc cân xứng, đồng bộ về mọi mặt. Đối với phần móng, được thiết kế cao ráo nhằm giúp biệt thự chống ngậm và ẩm móc cực tốt.
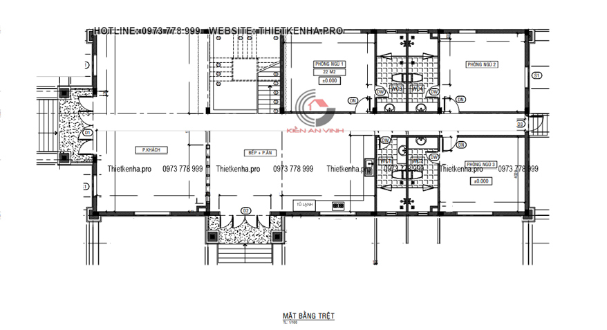
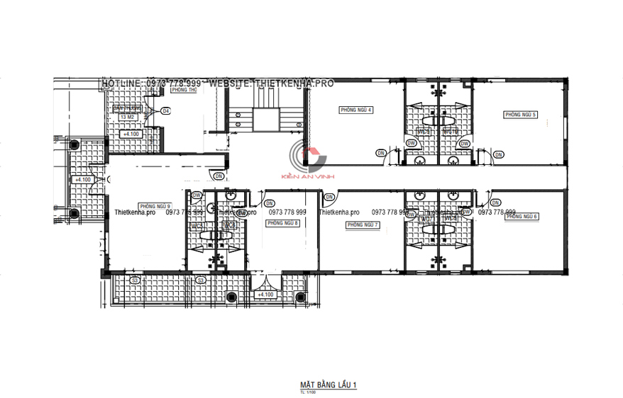
Sau khi nhìn tổng quan ngoại thất biệt thự, để biết không gian bên trong được bố trí ra sao. Cùng xem bản vẽ công năng bên dưới để hiểu hơn về cách bày trí các phòng ban ra sao để dễ dàng áp dụng cho gia đình của mình hơn nhé.
>> Tham khảo thêm : mẫu biệt thự 2 tầng hiện đại có sân vườn

Bản vẽ công năng thiết kế biệt thự 2 tầng hiện đại 10x25m
Để xem nhiều hình ảnh về những bản vẽ thiết kế biệt thự 2 tầng hiện đại hoặc phong cách khác. Khách hàng có thể vào “kienanvinh.vn” để tham khảo thêm nhé. Ngoài ra nếu muốn tư vấn hoặc báo giá có thể gọi trực tiếp thông tin bên dưới để được tư vấn tận tình nhé.

CÔNG TY THIẾT KẾ – XÂY DỰNG KIẾN AN VINH
VPĐD1: 52 TCH 36, P.Tân Chánh Hiệp, Q. 12,Tp.HCM
Holine: 0973.778.999 – 0902.249.297
(028) 2205.6868 -(028)6277.0999 – chăm sóc khách hàng
(028) 2207 6868 (Kế Toán)- 0981.507.588 (Vật Tư)
0902.249.297 – kienanvinh2012@gmail.com
Website : https://thietkenha.pro












