Mẫu nhà 3 tầng có thang máy 4x10m hiện đại- 3 phòng ngủ

800 MẪU THIẾT KẾ NHÀ ĐẸP | MẪU NHÀ ĐẸP 2020 ĐẠT CHUẨN ĐẸP MÊ LY HÚT HỒN Thiết kế nhà 3 tầng

Ở thời điểm hiện tại, về kiến trúc ở, phổ biến những mẫu nhà 3 tầng có thang máy 4x10m hiện đại như NP597 đây. Dần trở thành xu hướng thiết kế được nhiều gia đình Việt lựa chọn. Đặc biệt tại các khu đô thị đông dân và diện tích không quá rộng. Nhưng với cách bố trí khoa học, kiến trúc sư có thể tạo nên không gian sống tiện nghi, sang trọng và đầy đủ công năng.

Chủ đầu tư: Anh Toàn

Địa chỉ: Bình Thạnh

Thiết kế: KTS Lê Minh Nhật

Lối thiết kế bắt mắt của mẫu nhà 3 tầng có thang máy

Mặt tiền bắt mắt với thiết kế đơn giản, vật liệu dễ thay thế

Điểm nhấn đầu tiên khi nhìn vào mẫu nhà 3 tầng hiện đại chính là mặt tiền được thiết kế đơn giản nhưng tinh tế. Kiến trúc sư ưu tiên sử dụng kính và gỗ làm vật liệu chủ đạo. Kính cường lực được bố trí chủ yếu ở cửa sổ, lang cang. Giúp không gian bên trong luôn sáng sủa, mở rộng tầm nhìn.

Gỗ tự nhiên cao cấp được dùng cho cửa chính và các chi tiết ốp tường, tạo cảm giác ấm cúng và sang trọng.

Gam màu hài hòa, đồng nhất

Tổng thể ngôi nhà sử dụng gam màu trắng chủ đạo. Điểm xuyết bằng màu xám và gỗ ở cửa chính, viền cửa sổ và lang cang. Sự kết hợp này mang đến cảm giác thanh thoát, hiện đại mà vẫn ấm áp. Đây cũng là xu hướng màu sắc được yêu thích trong thiết kế nhà ở hiện nay. Giúp không gian nhà 3 tầng luôn tươi mới và dễ phối hợp nội thất.

 

Lam chắn sáng tạo, chi tiết hoa văn tinh tế

Khu vực tầng 1 và tầng 2 nổi bật với lam chắn màu trắng sáng. Chúng được thiết kế tối giản, không quá cầu kỳ nhưng vẫn đảm bảo tính thẩm mỹ cao. Lam chắn không chỉ giúp che nắng, che mưa. Mà còn có công dụng tạo điểm nhấn độc đáo cho mặt tiền.

Tầng trệt sang trọng với đá ốp tường

Phần tầng trệt được ốp đá vân trắng giúp tăng độ bền và vẻ sang trọng cho ngôi nhà. Chất liệu này dễ lau chùi, chống thấm và làm nổi bật tổng thể thiết kế. Khi kết hợp cùng ánh sáng đèn vàng, khu vực này trở nên vô cùng bắt mắt vào buổi tối.

Chi tiết tiện nghi của mẫu nhà 3 tầng hiện đại 4x10m

Một trong những yếu tố khiến mẫu nhà 3 tầng có thang máy 4x10m được yêu thích. Chính là sự tiện nghi trong từng chi tiết thiết kế.

– Cửa chính và cửa phụ các tầng đều được làm bằng gỗ cao cấp, đảm bảo độ bền và tính thẩm mỹ cao.

– Cửa sổ kính cường lực không chỉ giúp lấy sáng mà còn mang lại cảm giác mở rộng không gian.

– Lam chắn nắng ở tầng 2 và tầng 3 giúp che mưa, giảm nhiệt, đồng thời vẫn giữ được độ thông thoáng.

– Mỗi tầng đều có ban công rộng và thoáng, lan can bằng kính cường lực kết hợp khung inox tạo nên vẻ đẹp tinh tế và an toàn.

– Sự kết hợp hài hòa giữa vật liệu tự nhiên và hiện đại mang lại cảm giác tiện nghi, dễ chịu cho gia chủ, đồng thời thể hiện gu thẩm mỹ sang trọng, hiện đại.

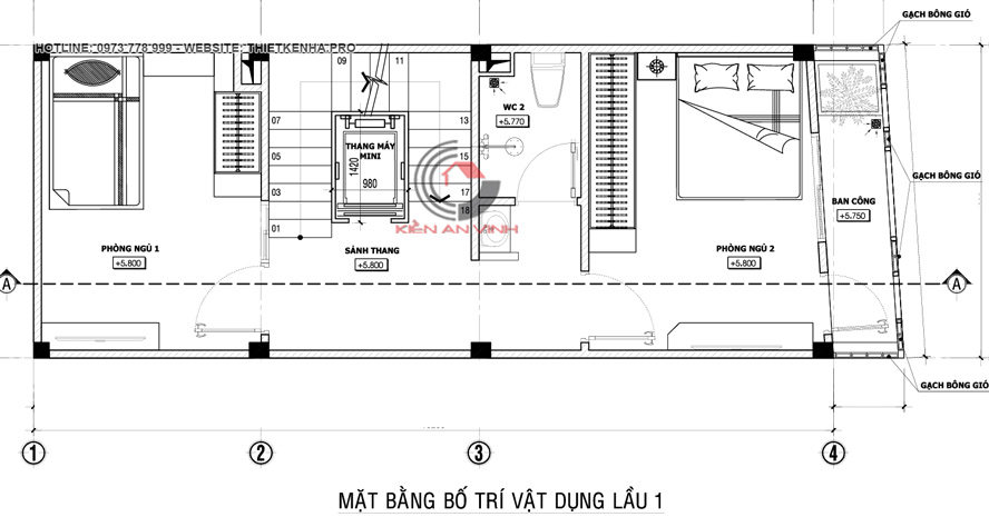
Bản vẽ công năng mẫu thiết kế nhà 3 tầng có thang máy

Với diện tích nhà 4x10m, việc bố trí công năng hợp lý là yếu tố then chốt. Để đảm bảo tiện nghi và tối ưu không gian sống.

Tầng trệt: Gồm phòng khách, khu vực để oto, 1 wc và khu vực thang máy + thang bộ.

Tầng lửng: Bố trí khu vực bếp, khu bàn ăn và khu vực thư giản.

Tầng 1: Gồm 2 phòng ngủ, 1 wc, khu vực ban công.

Tầng 2: Gồm 1 phòng ngủ, 1 wc, khu vực ban công.

Tầng thượng: Gồm 1 phòng thờ, sân phơi và sân thượng

>> Xem thêm: mẫu nhà 3 tầng có thang máy

Mẫu nhà 3 tầng có thang máy 4x10m hiện đại là giải pháp tối ưu cho mọi gia đình. Phù hợp với gia đình ưa chuộng sự đơn giản, hiện đại nhưng vẫn đảm bảo đầy đủ tiện nghi. Với mặt tiền bắt mắt, công năng khoa học và nội thất sang trọng. Mẫu nhà này luôn là lựa chọn lý tưởng ở mọi thời điểm.

CÔNG TY TNHH TƯ VẤN THIẾT KẾ – XÂY DỰNG NHÀ KIẾN AN VINH

Trụ sở chính: 434 Nguyễn Thái Sơn, Phường 5, Quận Gò Vấp, TP.HCM

VPĐD : 52 Tân Chánh Hiệp 36, P. Tân Chánh Hiệp, Quận 12, TP.HCM

Email: kienanvinh2012@gmail.com

Website: thietkenha.pro

Hotline: 0973 778 999 – 0902 249 297

GỬI YÊU CẦU TƯ VẤN

Sau khi nhận được yêu cầu tư vấn của quý khách, Kiến An Vinh sẽ liên hệ sớm nhất có thể để tư vấn cho quý vị







1 tỷ - 2 tỷ2 tỷ - 3 tỷ3 tỷ - 5 tỷKhông xác định