Ngày nay, nhu cầu xây dựng các ngôi chùa khang trang, đáp ứng và thể hiện giá trị văn hóa của người dân Việt ngày càng cao. Nên việc đầu tư bản vẽ thiết kế chùa đẹp cũng được chú trọng hơn. Thiết kế sao cho vừa bền vững và mang tính thẩm mỹ cao. Đặc biệt phải thể hiện được giá trị mang lại của đền chùa.

Điểm nổi bật của bản vẽ thiết kế chùa đẹp
Bản vẽ thiết kế đền chùa quyết định toàn bộ hình thái, công năng và thẩm mỹ của ngôi chùa. Một bản vẽ chi tiết, chuẩn xác giúp công trình đảm bảo được tỷ lệ cân đối. Tạo hài hòa giữa kiến trúc, cảnh quan xung quanh và cả yếu tố phong thủy. Vì thế việc thuê kiến trúc sư thiết kế bản vẽ là vô cùng quan trọng. Còn giúp lựa chọn vật liệu và phương án thi công phù hợp với ngân sách.
Khuôn viên chùa rộng, kết hợp kiến trúc cổ điển, tạo nên một bản vẽ thiết kế chùa đẹp chùa với bố cục mở. Kết hợp khuôn viên rộng rãi với nhiều công trình phụ trợ xung quanh. Sự kết hợp giữa kiến trúc cổ điển và phong cách hiện đại tạo nên tổng thể hài hòa. Vừa thể hiện được nét cổ kính vừa đương đại.

Trong thiết kế chùa, trụ cột là chi tiết quan trọng. Các trụ thường làm bằng gỗ lim, đá xanh hoặc bê tông giả gỗ… Vừa đảm bảo độ bền, vừa mang tính thẩm mỹ cao. Để các đường nét trạm trổ trở nên tinh xảo trên thân cột cần phải có bàn tay khéo léo và tâm huyết của nghệ nhân.
Cổng và cửa chùa là điểm nhấn sang trọng và trang nghiêm cho góc nhìn tổng thể. Cổng tam quan và cửa chùa thường được làm bằng gỗ tự nhiên có độ bền cao. Với kích thước lớn, hoa văn chạm khắc tinh tế như hình rồng, phượng, hoa sen, chữ Hán. Những chi tiết này không chỉ mang ý nghĩa phong thủy. Cũng là nét đặc trưng giúp tôn lên sự trang nghiêm của không gian chùa.

Các yếu tố cần có trong bản vẽ thiết kế chùa miếu đẹp
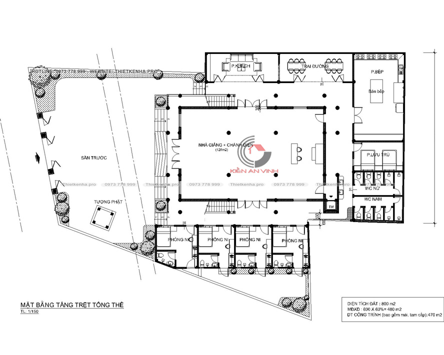
Bố cục tổng thể khuôn viên chùa miếu
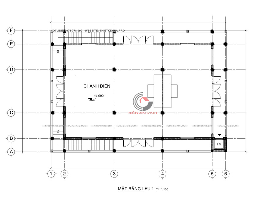
Bố cục trong bản vẽ thiết kế chùa miếu cần thể hiện rõ ràng. Từ sự phân chia không gian giữa khu thờ chính và khu sinh hoạt. Khu chính thường được đặt ở vị trí trung tâm, để dễ cho việc di chuyển, hành lễ của các sư thầy cũng như phật tử khi đến đây.
Tỷ lệ kiến trúc và vật liệu sử dụng
Tỷ lệ là yếu tố quan trọng quyết định tính thẩm mỹ và độ bền của công trình. Vật liệu chủ yếu là gỗ, đá, ngói và đồng, vừa tăng tính thẩm mỹ. Đồng thời còn vừa bền vừa mang nét cổ kính đặc trưng.

Cảnh quan xung quanh chùa
Không gian xung quanh chùa là yếu tố vừa tạo nên linh khí cho toàn bộ khuôn viên. Vừa tạo không gian tươi mát, nổi bật kiến trúc chùa. Bản vẽ cần thể hiện rõ từng chi tiết sân vườn đến kiến trúc khu hành lễ và khu sinh hoạt tại đây. Tất cả góp phần tạo nên không gian thanh tịnh, dịu và dễ chịu.
Những lưu ý cần nắm khi đầu tư thiết kế thi công chùa miếu
– Lựa chọn đơn vị thiết kế chuyên nghiệp: Nên chọn những kiến trúc sư có kinh nghiệm thiết kế công trình này. Để đảm bảo đúng phong thủy, quy chuẩn văn hóa.
– Tôn trọng yếu tố truyền thống: Không nên quá cách tân làm mất đi nét đặc trưng cổ truyền của chùa Việt.
– Tính toán kỹ chi phí thi công: Cần lập kế hoạch chi tiết về nguyên vật liệu. Cũng như nhân công, tiến độ để tránh phát sinh chi phí.
– Xin giấy phép xây dựng và tuân thủ quy định pháp lý: Đây là bước bắt buộc. Nhằm đảm bảo công trình được cấp phép hợp pháp và an toàn.

Bản vẽ thể hiện rõ công năng bên trong của mẫu chùa đẹp
Một bản vẽ thiết kế mẫu chùa miếu đẹp không chỉ phải đáp ứng thẩm mỹ tốt. Mà còn phải có sơ đồ kỹ thuật rõ ràng và chuẩn chỉnh. Thiết kế phải thể hiện rõ văn hóa và tín ngưỡng dân tộc. Mỗi chi tiết, mỗi đường nét trong bản vẽ đều mang ý nghĩa thiêng liêng, thể hiện sự tôn kính.













