Thẩm mỹ của một kiến trúc nhà biệt thự đẹp luôn là trung tâm của mọi ánh nhìn. Vì thế khi thiết kế biệt thự không chỉ quan tâm đến công năng tiện nghi mà thẩm mỹ ngoại thất cũng cần được chú trọng. Qua đó việc lựa chọn một đơn vị lên ý tưởng thiết kế chính là vấn đề cần chú trọng hàng đầu. Dưới đây là một điển hình về một bản vẽ thiết kế biệt thự 3 tầng mái thái 8x12m được đón nhận nhiều lời khen tích cực từ phía khách hàng.
Công trình nhà biệt thự 3 tầng do anh Hòa làm chủ đầu tư mảnh đất được ngụ tại quận Bình Tân TPHCM. Sau khi thông qua việc tiếp nhận yêu cầu từ phía kiến trúc sư kiến trúc sư Huyền đã nhanh chóng lên ý tưởng thiết kế. Sao cho vừa đáp ứng sự tiện nghi về công năng mặt khác còn phải đáp ứng về thẩm mỹ phải phù hợp xu hướng. Kiến trúc với phong cách tân cổ điển kết hợp mái thái giật cấp mang mã số BT525 được hình thành từ đó.
Hình ảnh phối cảnh của bản thiết kế biệt thự 3 tầng mái thái 8x12m
Hình ảnh thiết kế biệt thự 3 tầng mái thái diện tích 8x12m được sử dụng những chi tiết đơn giản. Nhưng vẫn mang đến cho biệt thự một nét đẹp hài hòa và tinh tế. Nếu quan sát kỹ có thể thấy phần kiến trúc được hình thành bởi sự kết hợp 2 khối bê tông. Được kết nối liền nhau tạo nên công trình biệt thự 3 tầng đồ sộ. Giúp nâng cao phần thẩm mỹ của kiến trúc ngoại thất.

Chủ đầu tư: Anh Hòa
Địa chỉ: Bình Tân
Thiết kế: KTS Nguyễn Thị Ngọc Huyền
Những thành tường rắn chắc được kết nối tạo nên kiên trúc kiên cố. Ngoài ra sự kết hợp những phần trụ còn là điểm nhấn ấn tượng cho biệt thự. Không những mang đến nét đẹp khỏe khoắn cho từng khu vực. Mà còn là điểm kết nối giữa các tầng tạo nên sự liên kết mật thiết tránh được sự rời rạc ở mỗi tầng lầu. Ngoài công dụng trên, các trụ còn là vật nâng đỡ công trình và hệ mái thái bên trên.

Phần mái thái được bố trí theo kiểu giật cấp và được chọn gam màu xanh ghi tinh tế. Mái càng nổi bật hơn khi có góc nhìn từ trên cao. Khi được phối nền trắng chủ đạo giúp biệt thự trở nên ấn tượng và sang trọng hơn hết. Nếu quan sát kỹ có thể thấy kiến trúc mang nét đẹp đơn điệu nhưng không làm biệt thự kém sắc. Với thành tường các phía để tránh sự nhàm chán với những mảng tường trơn tru. Kiến trúc sư đã bố trí những đường kẻ sọc ngang tạo điểm nhấn ấn tượng cho biệt thự.
Nét đẹp hiện đại của mẫu nhà biệt thự 3 tầng BT525
Để mặt tiền có sự mới mẻ và điểm ấn tượng. Các khu vực cửa đều được đồng nhất về vật liệu gỗ. Kích thước cửa chính ở tầng trệt có số đo lớn hơn so với những nơi ban công còn lại. Để tiết kiệm diện tích tối đa. Kiến trúc sư đã kết hợp hài hòa giữa không gian sống và khu vực đỗ xe để tránh chiếm diện tích sân trước. Khu đậu xe được bố trí ngay phần cạnh cửa chính nơi dẫn vào phòng khách.
Khác với loại cửa chính phụ được làm bằng gỗ cao cấp. Khu vực nơi để xe được sử dụng loại cửa cuốn vô cùng tiện lợi, cũng như việc bảo quản xe một cách an toàn hơn. Đối với khu vực cổng chính, được thiết kế với hoa văn được xen kẻ chằng chịt nhưng không làm bí bách. Cổng rào được làm từ vật liệu sắt rắn chắc kết hợp tường cao ráo tạo nên sự an toàn tuyệt đối cho khu vực biệt thự bên trong.
Mẫu thiết kế biệt thự 3 tầng mái thái 8x12m tuy không có diện tích sân rộng. Nhưng kiến trúc sư vẫn không quên bố trí khu vực để gia chủ và các thành viên có thể thu giản tại đây. Tận dụng khu vực tầng cao nhất, kiến trúc sư đã chừa một khoảng diện tích để đặt bàn trà. Tại đây các thành viên có thể giao lưu thư giản một cách thoải mái.

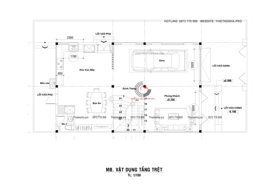
Bản vẽ công năng mẫu biệt thự 3 tầng hiện đại
Bên dưới là một số hình ảnh thể hiện công năng bên trong của biệt thự. Để có thể tham khảo thêm nhiều hình ảnh nhà biệt thự mái thái. Khách hàng có thể tham khảo thêm bài viết dưới đây để có nhiều sự lựa chọn hơn nhé.
>> Bản thiết kế biệt thự 3 tầng sân vườn đẹp

CÔNG TY THIẾT KẾ – XÂY DỰNG KIẾN AN VINH
VPĐD : 52 Tân Chánh Hiệp 36, P. Tân Chánh Hiệp, Quận 12, TP.HCM
Trụ sở chính: 434 Nguyễn Thái Sơn, Phường 5, Quận Gò Vấp, TP.HCM
Chăm sóc khách hàng: 0981.960.839
Kế Toán: (028) 3715 6379
Email: kienanvinh2012@gmail.com
Hotline: 0973 778 999 – 0902 249 297
Website: https://thietkenha.pro












